Sobre este espacio
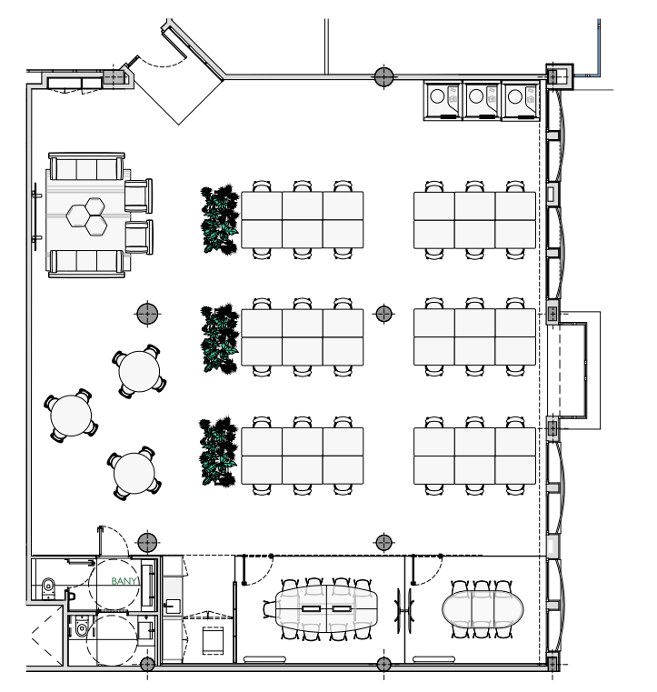
OFICINA RECIEN REFORMADA CON DOS SALAS DE REUNIÓN---------------------Esta oficina está diseñada para un máximo de 35 puestos de trabajo en una amplia zona abierta iluminada por luz natural gracias a sus ventanales de cristal y orientación exterior.----------- La oficina cuenta con un amplio espacio diáfano para albergar a la mayoría de los puestos de trabajo así como dos salas de reunión acristaladas y dos aseos. En las ultimas imágenes se incluyen planos con diferentes posibilidades de distribución. Tiene vistas hacía el Mercat de la Concepcio. Servicio de conserjería/seguridad y parking dentro del edificio. Posibilidad de alquilar el jardín comunitario para eventos privados. 💲Renta: 6655 €/mes 🏢Comunidad e IBI: 1366 €/mes 🟰 TOTAL: 8021 €/mes
Exclusivo edificio de oficinas en la Calle València, a dos manzanas de la Avda. Diagonal. Cuenta con los mejores equipamientos, tres ascensores, servicio de conserjería 12h y parking público y privado en el mismo edificio. Magníficas oficinas que disponen de baños, climatización centralizada, detector de incendios, ventanas practicables, pavimento tanto de parqué como de PVC vinílico y fibra óptica. Disfrutan de espacios con abundante luz natural y luminarias fluorescentes empotradas en falso techo. Plantas prácticamente diáfanas con algunas divisorias para sala de reuniones, cocina office y/o sala RACK. Muy buena comunicación, por un lado con la Avda. Diagonal y por el otro con la Gran Via de Les Corts Catalanes, dos de las principales vías de acceso a la ciudad, lo que hace a su vez que la zona esté envuelta por múltiples medios de transporte: L4 de metro Tetuán, Renfe a tres manzanas y diversas líneas de autobús: H10, 6, 20, 33, 34, 39, 45, 47, V17, N7. Hoteles, escuelas, gimnasios, restaurantes y un amplio abanico de comercios hacen de la zona una ubicación excepcional.
Contactanos para visitar el espacio
Contacta a uno de nuestros especialistas
Nuestro equipo te acompañará de una manera totalmente gratuita
Llama al
6.655 €/mes
(sin IVA)
+34 911 982 874
hola@sitandplug.com
Otras oficinas en el mismo espacio
No hay mas oficinas en el mismo espacio
Hemos contactado con el espacio. Enviaremos un mensaje de confirmación a tu dirección de correo electrónico lo antes posible cuando la visita esté confirmada.
Hemos recibido tu información. Nos ponemos a trabajar para mandarte, en menos de 24 horas, una propuesta con las oficinas ideales para ti
Your Stripe payment has been recorded successfully.
Your payment could not be processed on Stripe.